Spoločnosť BELEVIS Construction, s.r.o. vyhlásila architektonickú súťaž na riešenie zámeru výstavby projektu "Polyfunkčný dom, Štúrova" v Nitre. "Cieľom súťaže je výber najvhodnejšieho riešenia reprezentatívnej stavby v centre Mesta Nitra, ktorá sa stane vlajkovou loďou investora, jeho sídlom a teda dotvorí jeho identitu. Investor kladie vysoké požiadavky na kvalitu architektonického riešenia, napriek neobvyklej a komplikovanej zastavovacej schéme." píše sa v súťažných podmienkach.
Súťažné podklady si môžete stiahnuť na tomto odkaze.
Účastníci súťaže si na prvých troch miestach prilepšia o 11, 7 a 5-tisíc eur a budú vyzvaní na predloženie súťažného návrhu. Návrhy je potrebné predložiť do 9.9.2020. Predpokladaná hodnota investície je 5 400 000€ bez DPH.
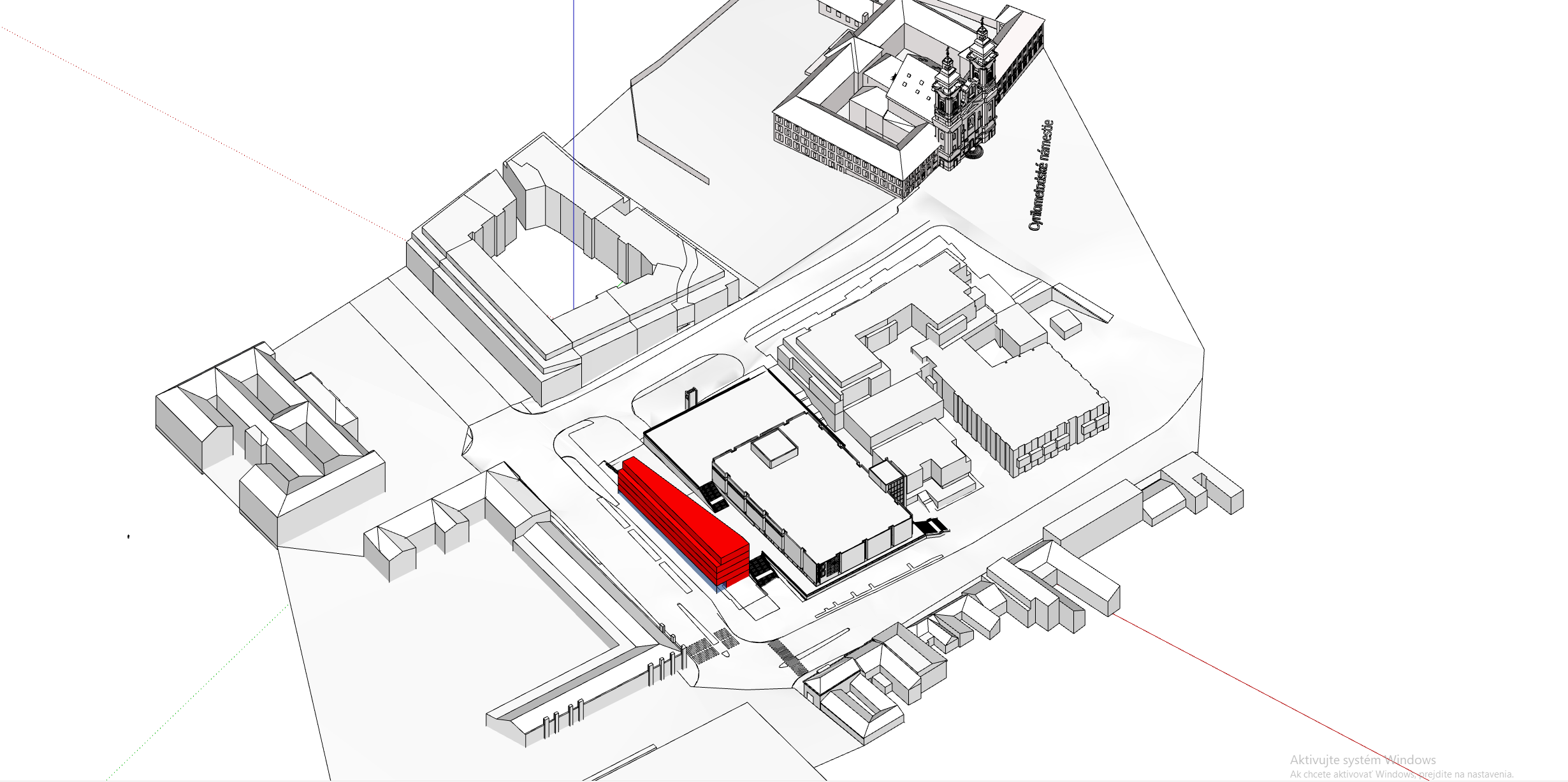
Pozemok, na ktorom sa plánuje výstavba je v súčasnosti nevyužívaný. Ide o trávnatý pás za zastávkou MHD v dotyku s budovou OD Tesco. Architekti sa budú musieť popasovať s veľkosťou pozemku, tvarom a faktom, že popri chodníku by mala prechádzať aj cyklotrasa, zachovaná musí byť aj zastávka MHD. V minulosti bola na tomto mieste zástavba domov, ktoré boli odstránené na prelome 60.-70. rokov 20. storočia z dôvodu výstavby obchodného domu Prior. Výstavbou polyfunkčného domu vznikne nová ulička. V tomto priestore sa v minulosti nachádzala Dolnotabánska ulica.
Očakávané zloženie budúcej budovy: v podzemí parkovanie s uvažovaným výťahom pre automobily, na prvom a druhom podlaží prenajímateľné prevádzky, na treťom a štvrtom podlaží administratívne priestory na prenájom, na piatom ustúpenom podlaží administratívne priestory investora.
Na vedľajšom pozemku v priestore dnešnej reklamnej obrazovky sa uvažuje s výstavbou budovy - v roku 2017 sa projekt označoval ako Polyfunkčný dom Maják. Tento projekt však nesúvisí s výstavbou polyfunkčného domu.
Vizualizácie - predpokladaný tvar budovy + staršia vizualizácia, kde je znázornený aj spomínaný susedný projekt "Maják"
(zdroj: www.belevis.sk)
Aktuálny pohľad na lokalitu
Zdroj: Nitralive.sk












